
Beschrijving
Strategisch gelegen te Lier, bieden wij een moderne werkplaats te huur aan.
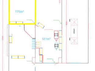
Het pand - bouwjaar 2025 - beslaat een oppervlakte van ca. 175 m² opslagruimte/werkplaats, met een vrije hoogte van 7 meter. De ruimte is geschikt voor opslag, alsook als werkruimte voor verschillende doeleinden.
Op heden is er tevens een bureelruimte op mezzanine aanwezig, dewelke kan worden overgenomen.
Voorts is het pand uitgerust met verlichting (led), elektriciteit en water. Sanitair is tevens aanwezig.
Toegang wordt verleend door middel van een gedeelde, gelijkvloerse sectionaalpoort.
Parkeermogelijkheden zijn aanwezig.
Huurprijzen exclusief btw, Onroerende Voorheffing en algemene onkosten ten laste van de huurder
Gelieve ons te contacteren voor verder informatie of om een bezoek ter plaatse in te plannen.
Het pand - bouwjaar 2025 - beslaat een oppervlakte van ca. 175 m² opslagruimte/werkplaats, met een vrije hoogte van 7 meter. De ruimte is geschikt voor opslag, alsook als werkruimte voor verschillende doeleinden.
Op heden is er tevens een bureelruimte op mezzanine aanwezig, dewelke kan worden overgenomen.
Voorts is het pand uitgerust met verlichting (led), elektriciteit en water. Sanitair is tevens aanwezig.
Toegang wordt verleend door middel van een gedeelde, gelijkvloerse sectionaalpoort.
Parkeermogelijkheden zijn aanwezig.
Huurprijzen exclusief btw, Onroerende Voorheffing en algemene onkosten ten laste van de huurder
Gelieve ons te contacteren voor verder informatie of om een bezoek ter plaatse in te plannen.
Financieel en beschikbaarheid
- Nettoprijs
- € 1.290 p/m
- Beschikbaarheid
- Onmiddellijk
- Kosten
- € 35 per maand
Specificaties
- Aansluiting riolering
- Ja
- Aansluiting gas
- Nee
- Aansluiting water
- Ja
- Toiletten
- 1
- Bewoonbare opp.
- 175 m²
- Opslagruimte
- 175 m²
- Bouwjaar
- 2025
- Perceel opp.
- 175 m²
- Elektriciteit
- Ja
- Binnenbelichting
- Led
- Buitenbelichting
- Ja,
- Buitenparking
- Ja
- Poorten
- 1
- Vrij hoogte
- 7 m






Joseph Van Instraat 13D
2500 Lier
Interesse?
Contacteer onze makelaar in de buurt. Wij staan u bij van a-z en begeleiden u in de verdere opvolging van het dossier.

Vergelijkbare panden

Te huur

Te huur

Te huur


