
Beschrijving
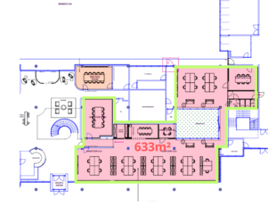
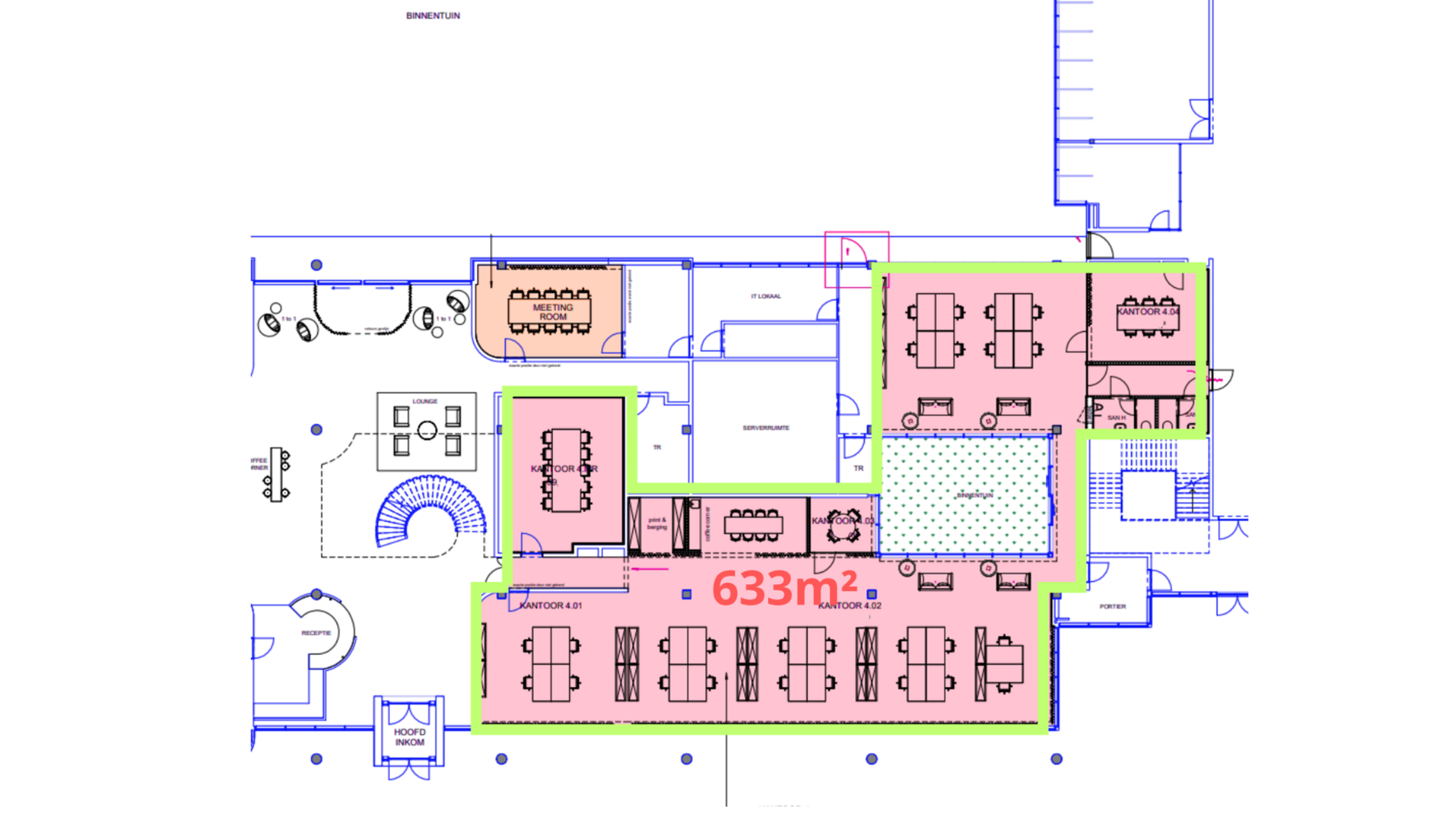
Het betreft de verhuur van een instapklare kantoorruimte van 633 m² in het modern uitgeruste Keetberg Logistic Center te Melsele, strategisch gelegen nabij de grote invalswegen richting Antwerpen.
De kantoorruimte profiteert van veel natuurlijk licht, een functionele indeling en hoogwaardige technische voorzieningen, waaronder een fossielvrij energieconcept, glasvezelverbindingen (Telenet & Proximus) en groene stroom van de aanwezige zonnepanelen. De functionele indeling biedt een hoge flexibiliteit en maakt de ruimte geschikt voor uiteenlopende kantoorconcepten.
Optioneel kan een mezzanine van ca. 500 m² met goederenlift worden bijgehuurd.(€40/m²/jaar) Daarnaast is extra magazijnruimte bespreekbaar.
Er is voldoende parkeergelegenheid, met de mogelijkheid tot laadpunten voor elektrische wagens.
Huurprijzen zijn exclusief lasten en Onroerende Voorheffing.
Verdere specificaties van het gebouw zijn onderaan terug te vinden.
De kantoorruimte profiteert van veel natuurlijk licht, een functionele indeling en hoogwaardige technische voorzieningen, waaronder een fossielvrij energieconcept, glasvezelverbindingen (Telenet & Proximus) en groene stroom van de aanwezige zonnepanelen. De functionele indeling biedt een hoge flexibiliteit en maakt de ruimte geschikt voor uiteenlopende kantoorconcepten.
Optioneel kan een mezzanine van ca. 500 m² met goederenlift worden bijgehuurd.(€40/m²/jaar) Daarnaast is extra magazijnruimte bespreekbaar.
Er is voldoende parkeergelegenheid, met de mogelijkheid tot laadpunten voor elektrische wagens.
Huurprijzen zijn exclusief lasten en Onroerende Voorheffing.
Verdere specificaties van het gebouw zijn onderaan terug te vinden.
Financieel en beschikbaarheid
- Nettoprijs
- € 6.858 p/m
- Prijs parking buiten per jaar
- € 600
- Beschikbaarheid
- Af te spreken met eigenaar
- Kosten
- € 22.788 per maand
- Huurlasten
- 36
Specificaties
- Omgeving autosnelweg
- Ja
- Air conditioning
- Ja
- Aansluiting riolering
- Ja
- Aansluiting water
- Ja
- Kabeltelevisie
- Ja
- Keuken
- Ja
- Bewoonbare opp.
- 633 m²
- Kantoren
- 633 m²
- Dubbel glas
- Ja
- Zonnepanelen
- Ja, Fotovoltaïsche
- Elektriciteit
- Ja
- Telefoonbekabeling
- Ja
- Kabelgoten
- Ja,
- Buitenbelichting
- Ja,
- Ventilatie
- Ja, HVAC Systeem
Attesten
- EPC
- EPC unieke code
- 20241210-0011660641-NR-2











Keetberglaan 1
9120 Beveren
Interesse?
Contacteer onze makelaar in de buurt. Wij staan u bij van a-z en begeleiden u in de verdere opvolging van het dossier.

Vergelijkbare panden

Te huur

Te huur

Te huur


