
Beschrijving
Het betreft beschikbare kantoorruimten langs de Antwerpse Singel in de Singel Building. De locatie is uiterst zichtbaar en biedt een strategische uitvalsbasis voor elk bedrijf. Dankzij de directe aansluiting op de Singel en de nabijheid van de belangrijkste autosnelwegen, is de site zeer vlot bereikbaar richting Brussel, Gent en Nederland. Ook met het openbaar vervoer is de bereikbaarheid uitstekend. Berchem Station ligt op wandelafstand en in de buurt zijn meerdere tram- en buslijnen beschikbaar.
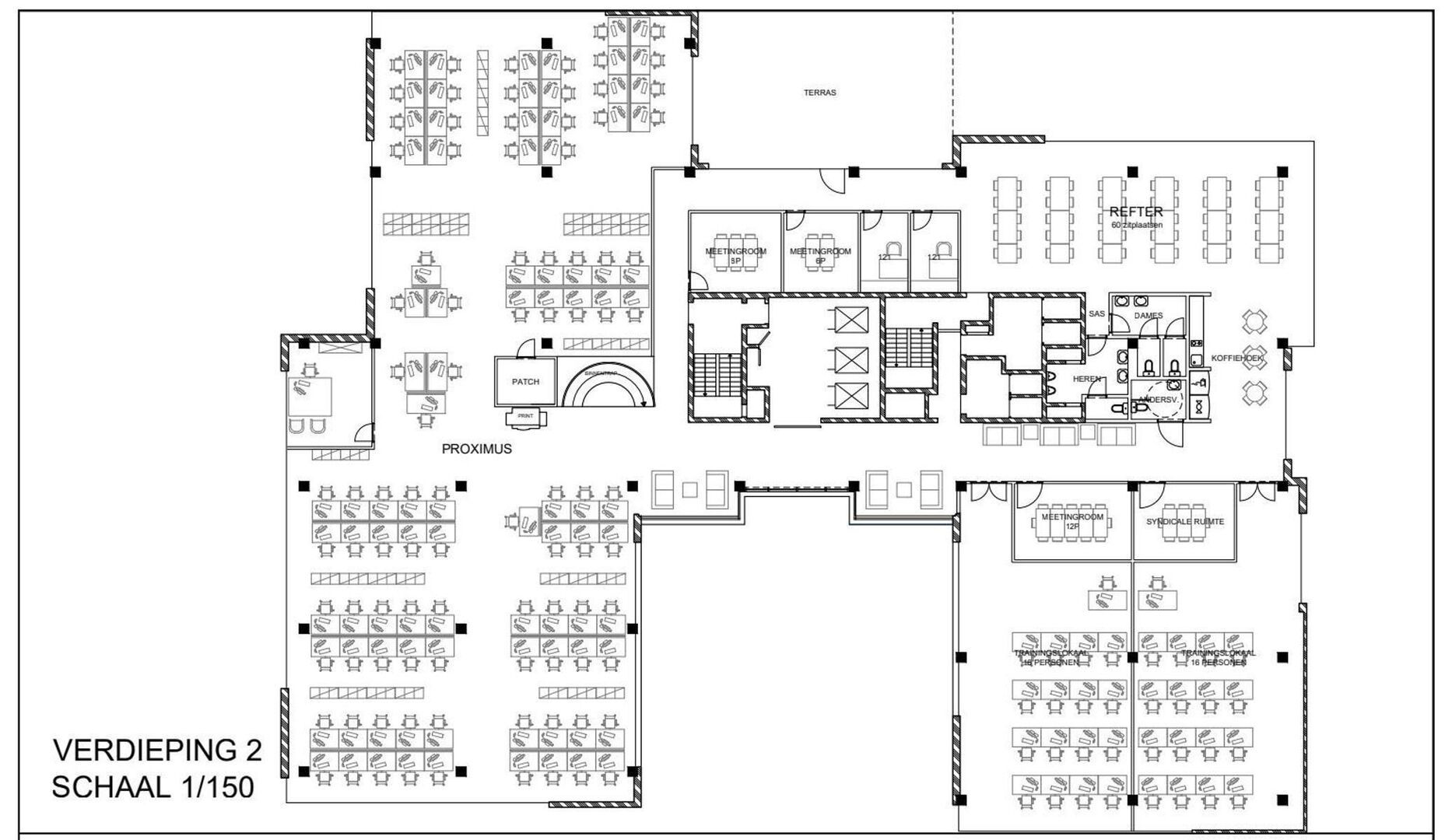
Binnen het gebouw zijn moderne en flexibel in te delen kantoorruimtes beschikbaar. De open kantoorruimtes bieden verschillende indelingsmogelijkheden, waardoor de inrichting eenvoudig kan worden afgestemd op de behoeften van de huurder.
Het gebouw beschikt over een uitstekende parkeercapaciteit, met een parkingratio van 1/100 m². Momenteel zijn er 40 parkeerplaatsen beschikbaar, aangeboden aan €1.250 per parkeerplaats per jaar. Laadfaciliteiten mogelijk!
Huurprijzen zijn exclusief lasten en Onroerende Voorheffing.
Verdere specificaties van het gebouw zijn onderaan terug te vinden.
Binnen het gebouw zijn moderne en flexibel in te delen kantoorruimtes beschikbaar. De open kantoorruimtes bieden verschillende indelingsmogelijkheden, waardoor de inrichting eenvoudig kan worden afgestemd op de behoeften van de huurder.
Het gebouw beschikt over een uitstekende parkeercapaciteit, met een parkingratio van 1/100 m². Momenteel zijn er 40 parkeerplaatsen beschikbaar, aangeboden aan €1.250 per parkeerplaats per jaar. Laadfaciliteiten mogelijk!
Huurprijzen zijn exclusief lasten en Onroerende Voorheffing.
Verdere specificaties van het gebouw zijn onderaan terug te vinden.
Financieel en beschikbaarheid
- Nettoprijs
- € 9.617 p/m
- Beschikbaarheid
- Onmiddellijk
- Huurlasten
- € 25 per maand
Specificaties
- Lift
- Ja
- Air conditioning
- Ja
- Aansluiting gas
- Ja
- Bewoonbare opp.
- 1.154 m²
- Kantoren
- 1.154 m²
- Verdieping
- 2
- Verdieping(en)
- 7
- Dubbel glas
- Ja
Attesten
- EPC
- 446 kWh/m²
- EPC unieke code
- 20240214-0019632924-NR-2










Uitbreidingstraat 180
2600 Berchem
Interesse?
Contacteer onze makelaar in de buurt. Wij staan u bij van a-z en begeleiden u in de verdere opvolging van het dossier.


Vergelijkbare panden

Te huur

Te huur

Te huur


