
Beschrijving
In KMO-zone 'Itterbeek' te Duffel bieden wij een hoogwaardig nieuwbouw bedrijfspand te koop aan.
Heden is het pand casco, zodoende het geheel op maat van de koper kan afgewerkt worden.
Vermelde verkoopprijs is casco - verdere afwerking/budget in onderling overleg.
Oppervlaktes:
Contacteer ons voor verdere informatie of om een bezoek ter plaatse in te plannen!
Wettelijke informatieplicht :
- Stedenbouwkundige vergunning : vergunning uitgereikt
- Stedenbouwkundige bestemming : Industriegebied voor ambachtelijke bedrijven of gebieden voor kleine en middelgrote ondernemingen
- Dagvaarding en herstelvordering: geen rechterlijke herstelmaatregel of bestuurlijke maatregel opgelegd
- Voorkooprecht : voorkooprecht ruimtelijke ordening aanwezig
- Verkavelingsvergunning : geen verkavelingsvergunning
- Watertoets : Perceelscore A, Gebouwscore A
Heden is het pand casco, zodoende het geheel op maat van de koper kan afgewerkt worden.
Vermelde verkoopprijs is casco - verdere afwerking/budget in onderling overleg.
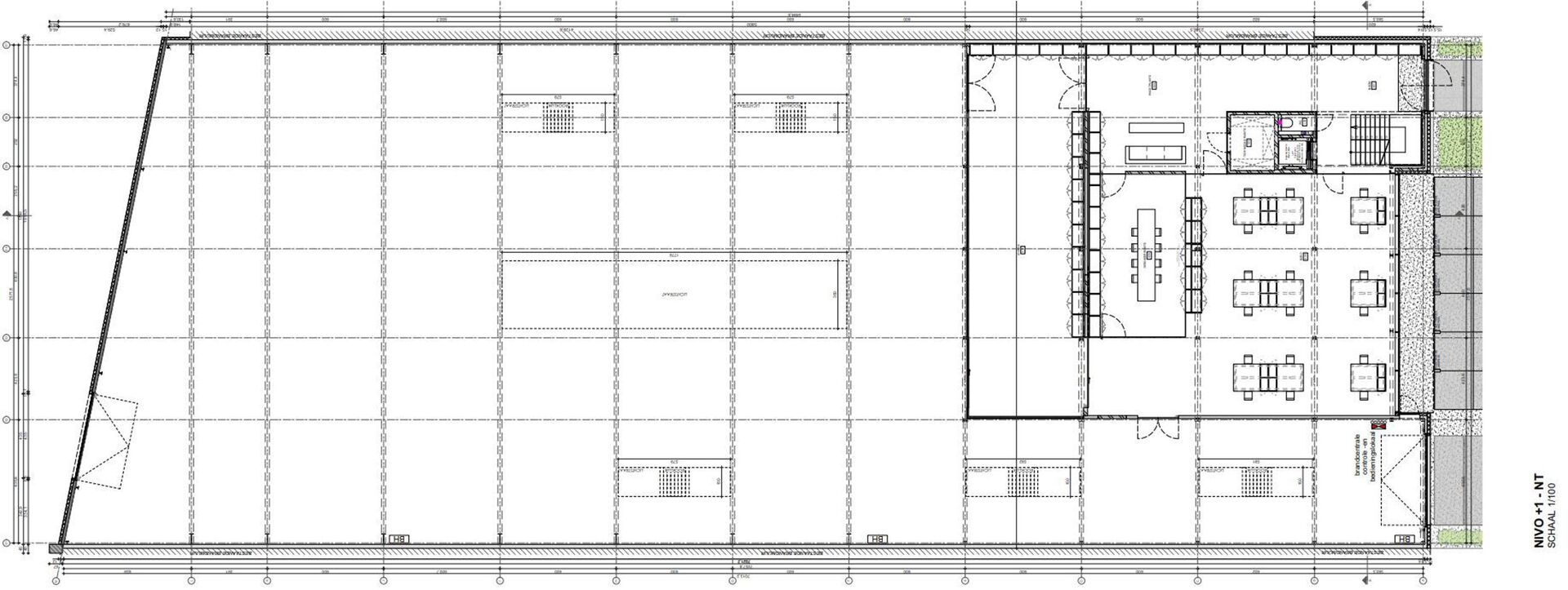
Oppervlaktes:
- 1 355 m² opslagruimte | werkplaats
- 455 m² showroom | kantoorruimte (gelijkvloers)
- 455 m² kantoorruimte | woonst (1ste verdieping)
- 2 280 m² terrein (KMO-zone)
Contacteer ons voor verdere informatie of om een bezoek ter plaatse in te plannen!
Wettelijke informatieplicht :
- Stedenbouwkundige vergunning : vergunning uitgereikt
- Stedenbouwkundige bestemming : Industriegebied voor ambachtelijke bedrijven of gebieden voor kleine en middelgrote ondernemingen
- Dagvaarding en herstelvordering: geen rechterlijke herstelmaatregel of bestuurlijke maatregel opgelegd
- Voorkooprecht : voorkooprecht ruimtelijke ordening aanwezig
- Verkavelingsvergunning : geen verkavelingsvergunning
- Watertoets : Perceelscore A, Gebouwscore A
Financieel en beschikbaarheid
- Nettoprijs
- € 2.995.000
- Onder BTW stelsel
- Ja
- Beschikbaarheid
- Bij oplevering
Specificaties
- Aansluiting riolering
- Ja
- Aansluiting water
- Ja
- Handelsruimte
- 455 m²
- Bewoonbare opp.
- 2.265 m²
- Opslagruimte
- 1.355 m²
- Kantoren
- 455 m²
- Constructie
- Gesloten
- Bouwjaar
- 2024
- Voorgevel
- Glass
- Perceel opp.
- 2.280 m²
- Elektriciteit
- Ja
- Buitenparking
- 6
- Poorten
- 2
- Vrij hoogte
- 6 m
Stedenbouwkundige informatie
- Bestemming
- Industriegebied voor ambachtelijke bedrijven of gebieden voor KMO's
- Bouwvergunning
- Ja
- Verkavelingsvergunning
- Nee
- Voorkooprecht
- Ja
- Dagvaarding
- Geen rechterlijke herstelmaatregel of bestuurlijke maatregel opgelegd
- Vonnissen
- Nee
- G-score
- A
- P-score
- A












Nijverheidsstraat 47
2570 Duffel
Interesse?
Contacteer onze makelaar in de buurt. Wij staan u bij van a-z en begeleiden u in de verdere opvolging van het dossier.

Vergelijkbare panden

Te koop

Te koop


